Emeinsa
¿Quienes somos?
Instalaciones y equipos
Servicios
Localización y contacto
INSTALACIONES Y EQUIPOS
Entibación hidraúlica auto-desplazable
Conjunto de entibación hidráulica para sostenimiento de techo.

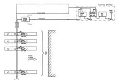
Esquema de estación de bombeo para alimentación a conjunto de entibación hidráulica.

Entibación hidráulica autodesplazable con bastidor deslizante y mamposta (estemple) para una carga nominal unitaria de 400 kN
   
Esquema de mamposta hidráulica.
Mampostas hidráulicas.
   
Entibación hidráulica autodesplazable con bastidor y mamposta (estample) para una carga nominal unitaria de 400 kN.

Volver a la página de servicios Volver
 
Zona Industrial s/n Apartado 38
E-33630 Pola de Lena. Asturias ESPAÑA
Telf.: +34 985 491 368 - +34 985 491 707 Fax: +34 985 492 161
email: emeinsa@emeinsa.com

Arriba Volver a la Página principal