Emeinsa
¿Quienes somos?
Instalaciones y equipos
Servicios
Localización y contacto
INSTALLATIONS AND EQUIPMENTS
Self-Powered Support System
Self-powered support system for ceiling barring.

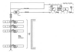
Diagram of pumping station for feeding a self-powered support system.

Self-powered support system with slider frame and prop (logs) for a unit nominal load of 400 kN.
   
Diagram of hydraulic log.
Hydraulic logs .
   
Self-powered support system with frame and prop (logs) for a unit nominal load of 400 KN.

Volver a la página de servicios Back
 
Zona Industrial s/n Apartado 38
E-33630 Pola de Lena. Asturias ESPAÑA
Telf.: +34 985 491 368 - +34 985 491 707 Fax: +34 985 492 161
email: emeinsa@emeinsa.com

Back to top Home page